08/05/2024
Rysunek techniczny to uniwersalny język komunikacji w świecie inżynierii, architektury, budownictwa i wielu innych dziedzin techniki. Jest to precyzyjny sposób przedstawiania kształtu, wymiarów, materiałów i innych istotnych informacji o przedmiocie lub systemie. Aby ten język był zrozumiały dla wszystkich zaangażowanych w proces – od projektanta, przez wykonawcę, aż po kontrolera jakości – musi opierać się na ściśle określonych zasadach i normach. Zrozumienie tych fundamentów jest kluczowe do prawidłowego tworzenia i interpretowania dokumentacji technicznej, która stanowi podstawę każdego przedsięwzięcia technicznego. W tym artykule przyjrzymy się bliżej zasadom tworzenia rysunku technicznego, elementom, które powinien zawierać, jego różnym rodzajom oraz etapom powstawania.

Fundamenty Czytelności i Zgodności z Normami
Centralną zasadą, na której opiera się każdy rysunek techniczny, jest jego absolutna czytelność. Rysunek nie jest dziełem sztuki, ma być narzędziem komunikacji. Brak czytelności prowadzi do pomyłek, błędów w produkcji, opóźnień i dodatkowych kosztów. Aby zapewnić tę fundamentalną czytelność, twórcy rysunków technicznych posługują się zestawem znormalizowanych narzędzi. Należą do nich przede wszystkim odpowiednie linie. Choć istnieje wiele typów linii technicznych (ciągłe grube, ciągłe cienkie, kreskowe, punktowe itp.), ich zastosowanie na rysunku ma jeden cel: jednoznaczne odróżnienie poszczególnych elementów przedstawianego obiektu. Różne typy linii służą do pokazania krawędzi widocznych, krawędzi niewidocznych, osi symetrii, linii wymiarowych czy linii przerywających. Ich właściwe użycie jest pierwszym krokiem do stworzenia zrozumiałego rysunku.
Kolejnym elementem zapewniającym czytelność są znaki graficzne. Są to symboliczne reprezentacje pewnych cech, procesów lub wymagań, które byłoby trudno lub niemożliwe przedstawić za pomocą samego rysunku geometrycznego. Znormalizowane znaki graficzne pozwalają na szybkie i jednoznaczne przekazanie informacji, takich jak rodzaj obróbki powierzchni, wymagania spawalnicze czy inne specyficzne instrukcje. Ich uniwersalność, gwarantowana przez normy, sprawia, że są one rozumiane przez specjalistów na całym świecie.
Nieodłącznym elementem rysunku technicznego są również opisy. Choć rysunek opiera się głównie na grafice, opisy tekstowe dostarczają dodatkowych, niezbędnych informacji, których nie da się przekazać za pomocą samych linii czy symboli. Mogą to być uwagi dotyczące materiałów, procesów technologicznych, specjalnych wymagań montażowych czy odniesienia do innych dokumentów. Podobnie jak pozostałe elementy, opisy powinny być formułowane precyzyjnie i zgodnie z przyjętymi standardami.
Kluczowe dla możliwości wykonania przedmiotu przedstawionego na rysunku jest wymiarowanie. System wymiarowania polega na podaniu wszystkich niezbędnych wymiarów geometrycznych obiektu (długości, średnice, kąty, promienie, odległości między elementami) w sposób jednoznaczny i kompletny. Prawidłowe wymiarowanie, zgodne z normami, zapewnia, że wykonawca dokładnie wie, jakie rozmiary ma mieć każdy element i gdzie ma być umieszczony. Błędy w wymiarowaniu są częstą przyczyną wadliwych produktów.
Wszystkie te elementy – linie, znaki graficzne, opisy i wymiarowanie – nie mogą być stosowane dowolnie. Ich użycie jest ściśle regulowane przez obowiązujące normy. Normy techniczne (np. międzynarodowe normy ISO, europejskie normy EN, krajowe normy PN) to zbiory zasad i wytycznych, które ujednolicają sposób tworzenia i interpretowania rysunków technicznych. Przestrzeganie norm jest absolutnie fundamentalne. Gwarantuje ono, że rysunek stworzony w jednym miejscu będzie poprawnie odczytany i zinterpretowany w innym, niezależnie od języka czy lokalizacji. Normy dotyczą formatów arkuszy, skali, grubości linii, sposobu wymiarowania, wyglądu symboli i wielu innych szczegółów. To właśnie normy sprawiają, że rysunek techniczny jest prawdziwie uniwersalnym językiem technicznym. Podsumowując, czytelność osiągana poprzez znormalizowane użycie linii, znaków graficznych, opisów i wymiarowania, w ścisłej zgodzie z normami, stanowi niepodważalną podstawę każdego poprawnego rysunku technicznego.
Kompletność Informacji: Co Znajdziemy na Rysunku?
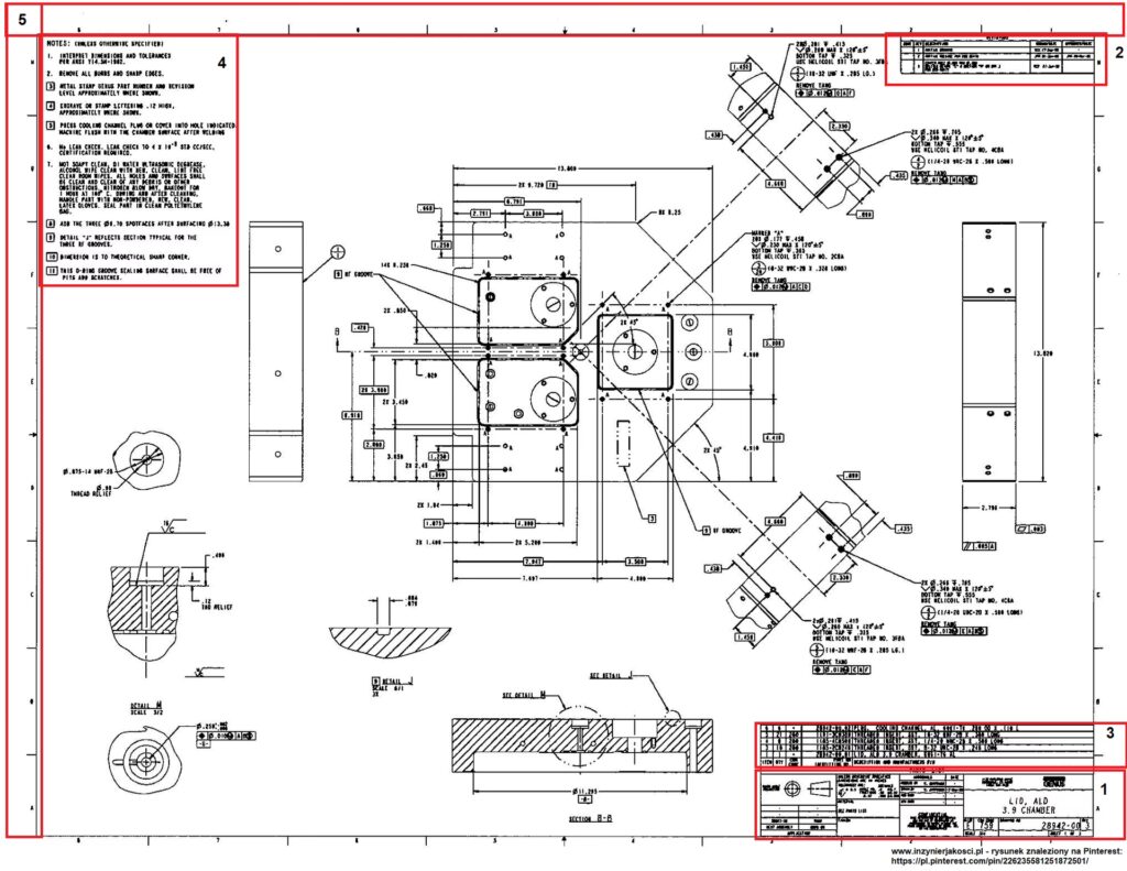
Aby rysunek techniczny spełniał swoją funkcję jako kompletna dokumentacja dla wykonawcy lub montażysty, musi zawierać szereg precyzyjnie określonych elementów. Każdy z tych elementów pełni kluczową rolę w przekazaniu pełnego obrazu przedstawianego obiektu.
Pierwszym, widocznym elementem jest ramka rysunku. Ramka rysunku wyznacza obszar roboczy arkusza i ogranicza pole, na którym umieszczone są wszystkie graficzne i tekstowe informacje. Jej obecność porządkuje rysunek i stanowi fizyczną granicę dokumentu.
W prawym dolnym rogu arkusza, wewnątrz ramki rysunku, znajduje się tabelka rysunkowa, często nazywana tabelką tytułową. Jest to swego rodzaju "dowód osobisty" rysunku. Choć specyficzna zawartość tabelki rysunkowej może się nieco różnić w zależności od normy i specyfiki firmy, zazwyczaj zawiera ona kluczowe informacje identyfikujące rysunek i przedstawiony obiekt. Należą do nich m.in. nazwa lub symbol rysunku, nazwa przedstawianego przedmiotu, skala rysunku, data wykonania, nazwisko projektanta, nazwisko sprawdzającego, numer rewizji oraz nazwa instytucji lub firmy, dla której rysunek został wykonany. Tabelka rysunkowa jest niezbędna do prawidłowego zarządzania dokumentacją techniczną.
Centralnym elementem graficznym rysunku są widoki przedmiotu. Ponieważ przedmioty techniczne są trójwymiarowe, a rysunek jest płaski, konieczne jest przedstawienie obiektu z różnych perspektyw, zazwyczaj w rzucie prostokątnym. Najczęściej stosuje się widoki w rzucie europejskim lub amerykańskim. Podstawowy zestaw widoków zazwyczaj obejmuje widok z przodu (główny), widok z góry i widok z boku. W zależności od złożoności przedmiotu, rysunek może zawierać również inne widoki, takie jak widoki z tyłu, z dołu, widoki przekrojów (pokazujące wewnętrzną strukturę) czy widoki szczegółów (powiększenia fragmentów wymagających szczególnej precyzji). Prawidłowy dobór i rozmieszczenie widoków jest kluczowe dla pełnego zrozumienia kształtu przedstawianego obiektu.
Jak już wspomniano, wymiarowanie jest absolutnie niezbędne. Bez wymiarowaniawidoki przedstawiają jedynie kształt, ale nie informują o rozmiarach. Zestaw wymiarów musi być kompletny – pozwalać na odtworzenie geometrii obiektu – ale jednocześnie nie może być nadmierny, aby nie wprowadzać chaosu i potencjalnych sprzeczności. Wymiarowanie obejmuje długości, odległości, średnice, promienie, kąty, a także położenie poszczególnych elementów względem siebie.
Oprócz podstawowych wymiarów, rysunek techniczny często zawiera informacje o tolerancjach. Tolerancja to dopuszczalne odchylenie od nominalnego wymiaru. W świecie rzeczywistym nie jest możliwe wykonanie żadnego elementu z absolutnie idealną precyzją. Tolerancje określają zakres, w jakim rzeczywisty wymiar może się mieścić, aby element nadal spełniał swoje funkcje i pasował do innych części. Podanie tolerancji jest kluczowe dla procesu produkcyjnego i kontroli jakości. Wyróżnia się tolerancje wymiarowe, geometryczne (np. prostoliniowości, płaskości, prostopadłości) oraz tolerancje kształtu i położenia.
Innym ważnym parametrem, który może być określony na rysunku, jest chropowatość powierzchni. Chropowatość powierzchni opisuje mikronierówności na powierzchni elementu. Ma ona kluczowe znaczenie dla funkcjonalności części, zwłaszcza tych, które współpracują ze sobą (np. w łożyskach, uszczelnieniach) lub mają określone wymagania estetyczne czy wytrzymałościowe. Chropowatość powierzchni jest określana za pomocą specjalnych znaków graficznych i wartości liczbowych, zgodnych z normami.
Wreszcie, rysunek techniczny może zawierać inne informacje dotyczące przedmiotu. Jest to kategoria obejmująca wszelkie dodatkowe dane, które są niezbędne do poprawnego wykonania, montażu, transportu czy użytkowania przedstawionego obiektu. Mogą to być informacje o materiale, z jakiego ma być wykonany element, rodzaju obróbki cieplnej, wymaganiach dotyczących malowania lub innych powłok, instrukcje specjalne, odniesienia do innych rysunków lub dokumentów, a także ogólne uwagi dotyczące wykonania. Ta sekcja zapewnia, że wszystkie krytyczne aspekty dotyczące przedmiotu są uwzględnione w dokumentacji.
Kompletny rysunek techniczny, zawierający wszystkie wymienione elementy – ramkę rysunku, tabelkę rysunkową, odpowiednie widoki, precyzyjne wymiarowanie, określone tolerancje i chropowatość powierzchni, a także wszelkie inne informacje dotyczące przedmiotu – stanowi kompleksową instrukcję, która umożliwia jego prawidłowe wykonanie i zastosowanie.

Różnorodność Zastosowań: Typy Rysunków Technicznych
Świat techniki jest niezwykle zróżnicowany, a wraz z nim zróżnicowane są cele, dla których tworzy się dokumentację techniczną. W zależności od tego, co dokładnie ma przedstawiać rysunek i do czego ma służyć, wyróżniamy różne jego rodzaje. Chociaż wszystkie opierają się na tych samych podstawowych zasadach czytelności, wymiarowania i zgodności z normami, każdy typ ma swoją specyfikę i przeznaczenie.
- Rysunek wykonawczy: Jest to podstawowy typ rysunku w przemyśle maszynowym i metalowym. Jego głównym celem jest dostarczenie wszystkich niezbędnych informacji do wykonania pojedynczego elementu (części maszyny, elementu konstrukcyjnego itp.). Rysunek wykonawczy zawiera kompletne wymiarowanie tej części, informacje o tolerancjach, chropowatości powierzchni, materiale oraz wszelkie inne informacje dotyczące przedmiotu niezbędne do jej produkcji. Nie pokazuje on, jak ta część pasuje do innych, tylko jak ją samodzielnie wytworzyć.
- Rysunek złożeniowy: W przeciwieństwie do rysunku wykonawczego, rysunek złożeniowy przedstawia, jak poszczególne części składowe są ze sobą łączone, tworząc większy zespół, podzespół lub całą maszynę. Na rysunku złożeniowym widoczne są wszystkie lub wybrane elementy w ich wzajemnym położeniu. Często towarzyszy mu tabelka rysunkowa zawierająca listę wszystkich części wchodzących w skład zespołu (tzw. tabelka materiałowa lub zestawienie). Rysunek złożeniowy służy głównie celom montażowym.
- Rysunek schematyczny: Ten typ rysunku nie przedstawia geometrycznego kształtu przedmiotu, lecz relacje funkcjonalne lub połączenia między elementami systemu. Rysunki schematyczne są szeroko stosowane w elektryce, hydraulice, pneumatyce czy automatyce. Wykorzystują znormalizowane znaki graficzne do reprezentowania komponentów (np. rezystorów, zaworów, silników) i linie do pokazania połączeń między nimi. Ich celem jest zrozumienie działania systemu, a nie jego fizycznego wyglądu.
- Rysunek architektoniczny: Ten typ rysunku dotyczy budynków i ich otoczenia. Obejmuje plany pięter, przekroje, elewacje, widoki perspektywiczne. Rysunki architektoniczne służą do przedstawienia koncepcji, układu przestrzennego, estetyki budynku. Są kluczowe dla komunikacji między architektem, klientem a wykonawcą. Zawierają wymiarowanie przestrzeni, wysokości, a także informacje o materiałach i wykończeniach.
- Rysunek budowlany: Jest ściśle powiązany z rysunkiem architektonicznym, ale koncentruje się na aspektach konstrukcyjnych i wykonawczych budowli. Obejmuje plany fundamentów, konstrukcji nośnej (ścian, stropów, dachu), detale połączeń konstrukcyjnych. Rysunki budowlane są niezbędne dla inżynierów budownictwa i ekip wykonawczych, dostarczając precyzyjnych informacji o sposobie wznoszenia obiektu, zastosowanych materiałach konstrukcyjnych i technologiach.
- Rysunek elektryczny: Specyficzny rodzaj rysunku schematycznego lub instalacyjnego, koncentrujący się na systemach elektrycznych. Może przedstawiać schematy ideowe obwodów, schematy połączeń, plany rozmieszczenia aparatury elektrycznej w budynku lub maszynie. Wykorzystuje znaki graficzne specyficzne dla elektrotechniki i elektroenergetyki.
- Rysunek instalacyjny: Dotyczy wszelkiego rodzaju instalacji w budynkach lub obiektach przemysłowych – wodno-kanalizacyjnych, grzewczych, wentylacyjnych, klimatyzacyjnych, gazowych, teletechnicznych itp. Przedstawia trasy prowadzenia rurociągów, kanałów, przewodów, lokalizację urządzeń (grzejników, kranów, central wentylacyjnych). Rysunki instalacyjne często nakładane są na rysunki architektoniczne lub budowlane, pokazując wzajemne relacje między instalacjami a strukturą budynku.
Każdy z tych typów rysunków ma swoje specyficzne zastosowania i odbiorców, ale wszystkie podlegają wspólnym normom i zasadom czytelności i wymiarowania, co umożliwia ich skuteczne wykorzystanie w odpowiednich dziedzinach techniki.
Aby podsumować, przedstawiamy krótkie zestawienie głównych typów rysunków technicznych i ich podstawowego przeznaczenia:
| Typ Rysunku | Główne Przeznaczenie |
|---|---|
| Rysunek wykonawczy | Wykonanie pojedynczej części |
| Rysunek złożeniowy | Montaż zespołu części |
| Rysunek schematyczny | Przedstawienie połączeń i działania systemu (np. elektrycznego, hydraulicznego) |
| Rysunek architektoniczny | Projekt i wygląd budynku, układ pomieszczeń |
| Rysunek budowlany | Konstrukcja i technologia wznoszenia budynku |
| Rysunek elektryczny | Systemy i instalacje elektryczne |
| Rysunek instalacyjny | Instalacje sanitarne, grzewcze, wentylacyjne itp. |
To zestawienie pokazuje, jak różnorodne mogą być zastosowania rysunku technicznego, choć wszystkie te rodzaje łączy potrzeba precyzji, czytelności i zgodności z normami.
Proces Tworzenia Rysunku Technicznego
Tworzenie rysunku technicznego to proces, który wymaga metodycznego podejścia i przejścia przez kilka kluczowych etapów. Każdy z nich ma swoje znaczenie i wpływa na ostateczną jakość i użyteczność dokumentacji.
Pierwszym i fundamentalnym etapem jest określenie celu rysunku. Zanim narysujemy pierwszą linię, musimy jasno zdefiniować, do czego ten rysunek ma służyć i kto będzie jego odbiorcą. Czy ma to być rysunek wykonawczy dla pojedynczej części? Rysunek złożeniowy dla zespołu? Rysunek architektoniczny dla klienta czy rysunek budowlany dla ekipy wykonawczej? Cel rysunku determinuje zakres informacji, jakie muszą się na nim znaleźć, poziom szczegółowości, a także wybór odpowiedniego typu rysunku. Na przykład, rysunek wykonawczy musi zawierać wszystkie wymiary, tolerancje i chropowatość powierzchni, podczas gdy rysunek złożeniowy skupi się na wzajemnym położeniu części i sposobie ich montażu. Precyzyjne określenie celu rysunku na początku procesu pozwala uniknąć zbędnej pracy i zapewnia, że końcowy dokument będzie zawierał wszystkie niezbędne dane.
Drugim ważnym krokiem jest wybór odpowiedniej skali. Skala to stosunek wymiarów przedstawionego obiektu na rysunku do jego rzeczywistych wymiarów. Wybór skali zależy od wielkości przedstawianego obiektu oraz od ilości szczegółów, które muszą być widoczne. Duże obiekty (np. budynki) rysuje się w skali pomniejszającej (np. 1:100, 1:50), natomiast małe lub skomplikowane części mogą wymagać skali powiększającej (np. 2:1, 5:1) lub skali naturalnej (1:1). Wybór odpowiedniej skali jest kluczowy dla czytelności rysunku – skala zbyt mała może sprawić, że szczegóły będą niewidoczne, a skala zbyt duża może wymagać podziału rysunku na wiele arkuszy. Skala musi być wyraźnie zaznaczona na rysunku, zazwyczaj w tabelce rysunkowej.
Trzeci etap to sporządzenie szkicu. Zanim przystąpimy do tworzenia finalnego rysunku technicznego (często za pomocą specjalistycznego oprogramowania CAD), warto sporządzić szkic odręczny lub wstępny rysunek poglądowy. Szkic pozwala na szybkie przetestowanie różnych koncepcji, rozplanowanie widoków, wymiarowania i upewnienie się, że wszystkie niezbędne informacje zostaną uwzględnione. Jest to etap planowania i wstępnego projektowania graficznego, który może zaoszczędzić wiele czasu na późniejszym etapie.
Czwarty etap to właściwe wykonanie rysunku. Na tym etapie, bazując na szkicu i zgodnie z ustalonym celem i skalą, tworzony jest precyzyjny rysunek techniczny z zastosowaniem wszystkich obowiązujących norm. Wykorzystuje się odpowiednie typy linii, znaki graficzne, umieszcza widoki, przeprowadza kompletne wymiarowanie, nanosi tolerancje, chropowatość powierzchni oraz inne informacje dotyczące przedmiotu. W dzisiejszych czasach wykonanie rysunku odbywa się najczęściej przy użyciu oprogramowania komputerowego, co zapewnia wysoką precyzję i ułatwia nanoszenie zmian.
Piątym i niezwykle ważnym etapem jest sprawdzenie rysunku. Gotowy rysunek techniczny musi zostać dokładnie sprawdzony pod kątem kompletności, poprawności i zgodności z normami. Sprawdza się, czy wszystkie wymiary są podane, czy tolerancje są logiczne, czy widoki są poprawne i czytelne, czy tabelka rysunkowa zawiera wszystkie niezbędne dane i czy cały rysunek jest zgodny z obowiązującymi normami technicznymi. Etap sprawdzenia rysunku często wykonuje inna osoba niż twórca, aby zapewnić obiektywność. Wyłapanie błędów na tym etapie jest znacznie tańsze niż odkrycie ich podczas produkcji lub montażu.
Przejście przez te pięć etapów – określenie celu rysunku, wybór odpowiedniej skali, sporządzenie szkicu, wykonanie rysunku i sprawdzenie rysunku – jest kluczowe dla stworzenia poprawnej, czytelnej i użytecznej dokumentacji technicznej, która będzie mogła być skutecznie wykorzystana w dalszych procesach.
Znaczenie Zrozumienia Rysunku Technicznego
Choć w tej sekcji nie przedstawiamy szczegółowego podręcznika "jak czytać rysunek techniczny" (co wykracza poza ramy tego artykułu), warto podkreślić, dlaczego zrozumienie rysunku technicznego jest tak ważne dla każdego, kto ma z nim do czynienia – czy to inżynier, technik, operator maszyny, czy pracownik budowy. Rysunek techniczny, jak już wielokrotnie podkreślano, jest językiem. Językiem precyzyjnym i międzynarodowym, ale jak każdy język, wymaga nauki i zrozumienia jego gramatyki i słownictwa. Znajomość zasad, o których mówiliśmy – zasad czytelności, stosowania odpowiednich linii i znaków graficznych, zasad wymiarowania, tolerancji i chropowatości powierzchni – jest niezbędna do prawidłowej interpretacji informacji zawartych na rysunku.
Bez umiejętności czytania rysunku technicznego, nawet najbardziej precyzyjna dokumentacja staje się bezużyteczna. Prawidłowe odczytanie widoków, zrozumienie znaczenia poszczególnych wymiarów i tolerancji, a także interpretacja innych informacji dotyczących przedmiotu decyduje o tym, czy produkt końcowy będzie zgodny z zamierzeniem projektanta. Błędy w interpretacji mogą prowadzić do kosztownych pomyłek, niezgodności wymiarowych, problemów z montażem czy wadliwego działania gotowego wyrobu. Dlatego nauka i praktyka w zakresie czytania rysunków technicznych, oparta na solidnym zrozumieniu ich podstawowych zasad i elementów, jest nieodzownym elementem kształcenia i pracy w wielu zawodach technicznych. To umiejętność, która bezpośrednio przekłada się na jakość, efektywność i bezpieczeństwo pracy.
Najczęściej Zadawane Pytania
Poniżej odpowiadamy na najczęściej zadawane pytania dotyczące rysunku technicznego:
- Jakie są podstawowe zasady rysunku technicznego?
- Podstawowe zasady rysunku technicznego koncentrują się na zapewnieniu jego absolutnej czytelności. Osiąga się to poprzez stosowanie odpowiednich, znormalizowanych linii, znaków graficznych, precyzyjnych opisów i dokładnego wymiarowania. Wszystkie te elementy muszą być ściśle zgodne z obowiązującymi normami technicznymi, które ujednolicają sposób tworzenia i interpretacji rysunków na całym świecie.
- Co musi zawierać rysunek techniczny, aby był kompletny?
- Kompletny rysunek techniczny powinien zawierać szereg kluczowych elementów. Należą do nich: ramka rysunku wyznaczająca pole robocze, tabelka rysunkowa (tytułowa) identyfikująca rysunek, odpowiednie widoki przedmiotu przedstawiające jego kształt z różnych stron, precyzyjne wymiarowanie określające rozmiary, informacje o tolerancjach (dopuszczalnych odchyłkach wymiarowych i geometrycznych), specyfikację chropowatości powierzchni oraz wszelkie inne informacje dotyczące przedmiotu niezbędne do jego wykonania lub montażu.
- Jakie są główne rodzaje rysunków technicznych?
- W zależności od przeznaczenia, wyróżnia się różne rodzaje rysunków technicznych. Do najczęściej spotykanych należą: rysunek wykonawczy (dla pojedynczej części), rysunek złożeniowy (pokazujący montaż zespołu), rysunek schematyczny (przedstawiający połączenia funkcjonalne w systemach), a także rysunki specyficzne dla branż, takie jak rysunek architektoniczny, rysunek budowlany, rysunek elektryczny czy rysunek instalacyjny.
- Jakie są etapy tworzenia rysunku technicznego?
- Proces tworzenia rysunku technicznego obejmuje zazwyczaj pięć głównych etapów: 1) Określenie celu rysunku – zdefiniowanie, do czego rysunek ma służyć. 2) Wybór odpowiedniej skali – dopasowanie rozmiaru przedstawienia do arkusza i wymaganej szczegółowości. 3) Sporządzenie szkicu – wstępne rozplanowanie rysunku. 4) Wykonanie rysunku – stworzenie precyzyjnej dokumentacji zgodnie z zasadami i normami. 5) Sprawdzenie rysunku – weryfikacja poprawności i kompletności przed publikacją.
- Dlaczego przestrzeganie norm w rysunku technicznym jest tak ważne?
- Przestrzeganie obowiązujących norm jest kluczowe, ponieważ zapewnia uniwersalność i jednoznaczność rysunku technicznego. Normy standaryzują sposób przedstawiania elementów, wymiarowania, stosowania symboli i formatowania, dzięki czemu rysunek stworzony przez jedną osobę w jednym miejscu może być poprawnie odczytany i zinterpretowany przez inną osobę gdziekolwiek indziej. Jest to fundament skutecznej komunikacji technicznej.
- Po co na rysunku podaje się tolerancje i chropowatość powierzchni?
- Tolerancje i chropowatość powierzchni to informacje niezbędne w procesie produkcyjnym. Tolerancje określają dopuszczalne odchyłki od nominalnych wymiarów, co jest kluczowe dla możliwości wykonania części i jej prawidłowego funkcjonowania w zespole. Chropowatość powierzchni informuje o wymaganym stopniu gładkości powierzchni, co wpływa na właściwości funkcjonalne (np. tarcie, zużycie) i estetyczne elementu. Podanie tych informacji jest konieczne do prawidłowego wykonania i kontroli jakości części.
Podsumowując, rysunek techniczny to złożony, ale niezwykle precyzyjny system komunikacji, który stanowi kręgosłup nowoczesnej produkcji, budownictwa i inżynierii. Jego skuteczność opiera się na ścisłym przestrzeganiu zasad zapisu technicznego, w tym przede wszystkim na zapewnieniu czytelności i bezwzględnej zgodności z obowiązującymi normami. Kompletność informacji, zawartych w ramce rysunku, tabelce rysunkowej, widokach, wymiarowaniu, tolerancjach, specyfikacji chropowatości powierzchni i innych informacjach dotyczących przedmiotu, gwarantuje, że wykonawca posiada wszystkie dane potrzebne do realizacji projektu. Różnorodność rodzajów rysunków technicznych pozwala dostosować formę dokumentacji do specyficznych potrzeb różnych dziedzin i etapów prac – od rysunku wykonawczego pojedynczego detalu po rysunek instalacyjny złożonego systemu. Proces tworzenia rysunku, od określenia celu po finalne sprawdzenie rysunku, jest metodycznym działaniem, które zapewnia precyzję i poprawność. Zrozumienie tego języka techniki jest kluczowe dla każdego, kto pracuje w obszarze projektowania, produkcji czy montażu, umożliwiając efektywną współpracę i realizację nawet najbardziej skomplikowanych przedsięwzięć. Opanowanie zasad rysunku technicznego otwiera drzwi do świata techniki i precyzji.
Zainteresował Cię artykuł Podstawy Rysunku Technicznego: Zasady i Etapy? Zajrzyj też do kategorii Tapicerstwo, znajdziesz tam więcej podobnych treści!
